Description
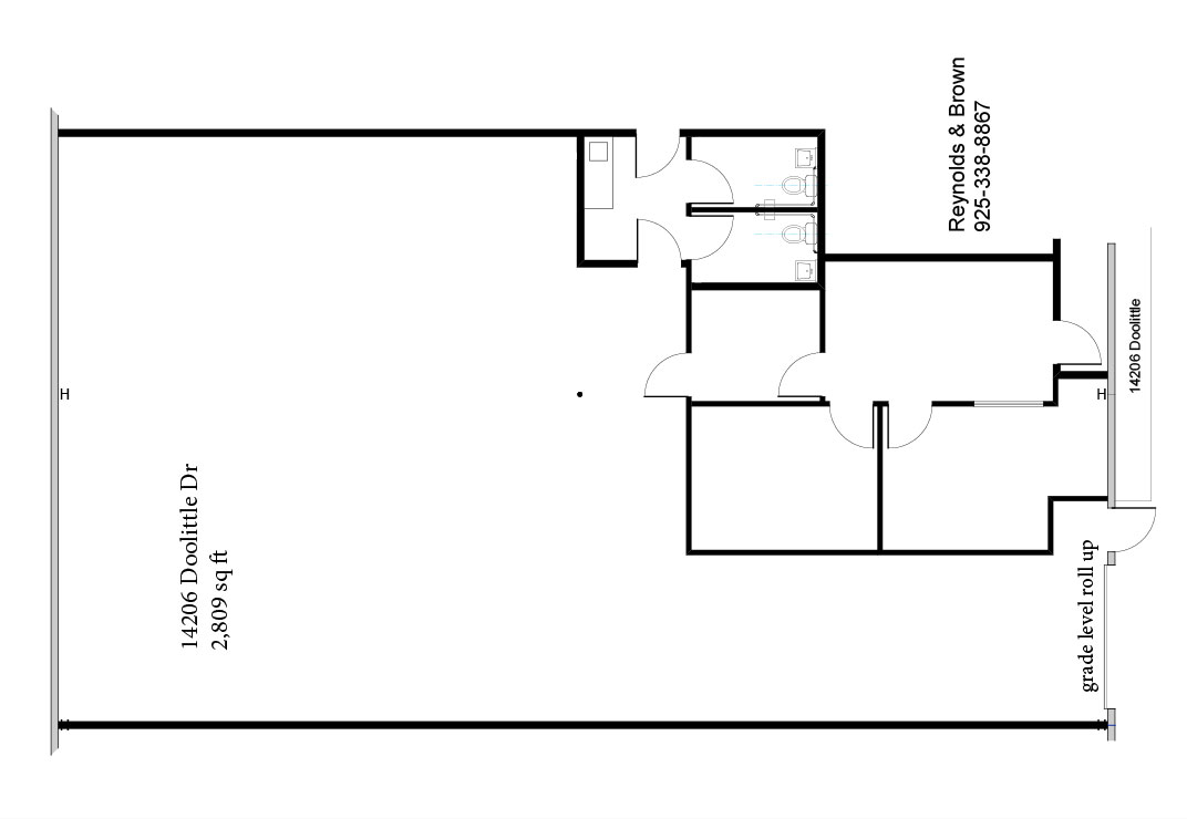
2,809 SF industrial warehouse suite available for lease at 14206 Doolittle Dr in San Leandro, CA. The space features a front-loading grade-level drive-in door, a reception area, 2 private offices, and a coffee bar shared with the neighboring tenant. The suite can be combined with the adjacent space at 14208 Doolittle for up to 5,076 SF of contiguous industrial space. Located in a reinforced concrete multi-tenant industrial complex built in 1979, with 16-foot clear height, 100-200 amp power, gas/sewer/water utilities, and 20 shared parking spaces. Co-tenants include Merry Maids and Commercial Door & Frame. Ideal for contractor space, light manufacturing, storage and distribution, or trade service businesses needing warehouse access with a professional office presence. Near I-880 and Kaiser Permanente San Leandro Medical Center. Rate: $1.65/SF/mo MG.




